
小田原市堀之内で新築を探すなら今がチャンス!仲介手数料無料や長期優良住宅子育てグリーン住宅支援事業対象もご紹介
新しい住まいをお探しのご夫婦が、小田原市堀之内で安心して長く暮らせる新築住宅を見つけるためには、どのようなポイントに注目すれば良いのでしょうか。子育てやご家族の将来を見据えた住まい選びは、多くの方が悩まれる重要なテーマです。この記事では、小田原市堀之内エリアの魅力や暮らしやすさに加え、長期優良住宅や子育てグリーン住宅支援事業のメリット、さらに仲介手数料無料で新築住宅を購入する際の注意点まで、分かりやすく解説いたします。

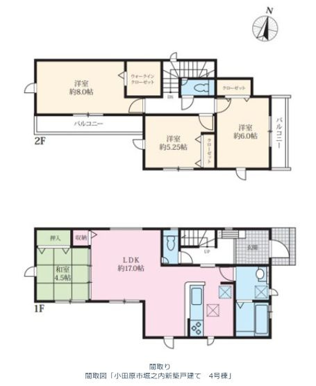
〇長期優良住宅取得・住宅性能表示・フラット35S利用可・ZEH水準仕様
◇学区:東富水小学校・泉中学校|小田原市の新築・中古・不動産ならフィールドホームズへ



小田原市堀之内の魅力と住環境
小田原市堀之内は、神奈川県西部に位置する閑静な住宅街です。周囲には豊かな自然が広がり、四季折々の風景を楽しむことができます。特に、箱根連山や相模湾に近く、自然環境に恵まれています。
生活利便施設も充実しており、徒歩圏内にはコンビニエンスストアやスーパーマーケットが点在しています。例えば、「ファミリーマート富水駅前店」は徒歩約5分の距離にあり、日常の買い物に便利です。
教育機関も整っており、近隣には小学校や中学校があり、子育て世代にとって安心の環境が整っています。
交通アクセスも良好で、小田急小田原線「富水」駅まで徒歩約6分と、通勤・通学に便利な立地です。さらに、小田原駅からは新幹線や特急列車が利用でき、都心へのアクセスもスムーズです。
以下に、堀之内エリアの主な生活利便施設とその距離をまとめました。
| 施設名 | 種類 | 距離 |
|---|---|---|
| ファミリーマート富水駅前店 | コンビニエンスストア | 徒歩約5分 |
| 富水駅 | 鉄道駅 | 徒歩約6分 |
| 近隣小学校 | 教育機関 | 徒歩圏内 |
このように、小田原市堀之内は自然環境と生活利便性が調和した魅力的なエリアです。新築住宅を検討されているご夫婦にとって、快適な住環境が整っています。
長期優良住宅のメリットと特徴
長期優良住宅とは、長期間にわたり良好な状態で使用できるよう、国が定めた基準を満たした住宅のことです。この認定を受けることで、さまざまなメリットが得られます。
まず、長期優良住宅の認定基準には、以下の9つの項目があります。
| 項目 | 概要 |
|---|---|
| 劣化対策 | 構造躯体が少なくとも100年使用できる措置が講じられていること。 |
| 耐震性 | 数百年に一度の地震に対して倒壊・崩壊しない強度を有すること。 |
| 維持管理・更新の容易性 | 内装や設備の維持管理が容易であること。 |
| 可変性 | ライフスタイルの変化に応じて間取りの変更がしやすいこと。 |
| バリアフリー性 | 将来のバリアフリー改修に対応できること。 |
| 省エネルギー性 | 必要な断熱性能などの省エネ性能が確保されていること。 |
| 居住環境 | 地域の良好な景観形成に配慮されていること。 |
| 住戸面積 | 良好な居住水準を確保するために必要な規模があること。 |
| 維持保全計画 | 定期点検、補修の計画が策定されていること。 |
これらの基準を満たすことで、住宅の耐久性や安全性が向上し、長期にわたって快適に暮らすことが可能となります。
さらに、長期優良住宅には経済的なメリットも多くあります。例えば、住宅ローン控除の借入限度額が一般住宅よりも高く設定されており、最大4,500万円までの控除が受けられます。また、固定資産税の軽減期間が延長され、不動産取得税の控除額も増加します。これらの税制優遇措置により、住宅取得時の負担が軽減されます。
環境面でも、長期優良住宅は高い省エネルギー性能を有しており、断熱性能やエネルギー消費量の削減が求められます。これにより、冷暖房費などのランニングコストが抑えられ、環境負荷の低減にも寄与します。
長期優良住宅を選ぶ際のポイントとして、認定基準を満たしているかを確認することが重要です。特に、耐震性や省エネルギー性などの性能面をしっかりとチェックし、自身のライフスタイルや将来設計に合った住宅を選ぶことが大切です。
このように、長期優良住宅は耐久性や安全性、経済性、環境性など、多方面でのメリットを提供する住宅です。新築住宅を検討されている方は、ぜひ長期優良住宅の認定を受けた物件を選択肢に加えてみてはいかがでしょうか。
子育てグリーン住宅支援事業の概要と活用方法
子育てグリーン住宅支援事業は、2050年のカーボンニュートラル実現を目指し、特に子育て世帯や若者夫婦世帯を対象に、省エネルギー性能の高い住宅の新築や既存住宅の省エネ改修を支援する制度です。
この事業の目的は、エネルギー価格の高騰などの影響を受けやすい世帯に対し、環境負荷の少ない住宅の普及を促進することにあります。
支援対象となる住宅の種類と補助額は以下の通りです。
| 住宅の種類 | 対象世帯 | 補助額 |
|---|---|---|
| GX志向型住宅 | すべての世帯 | 160万円/戸 |
| 長期優良住宅 | 子育て世帯・若者夫婦世帯 | 80万円/戸(建替前住宅等の除却を行う場合は100万円/戸) |
| ZEH水準住宅 | 子育て世帯・若者夫婦世帯 | 40万円/戸(建替前住宅等の除却を行う場合は60万円/戸) |
申請方法については、まず、登録された事業者(建築事業者や販売事業者、工事施工業者)を通じて手続きを行います。一般消費者が直接申請することはできません。契約期間は特に定められていませんが、2024年11月22日以降に対象工事に着手し、2025年12月31日までに工事が完了するものが対象となります。ただし、予算上限に達した場合、申請受付が早期に終了する可能性があるため、早めの申請をおすすめします。
この支援事業を活用することで、高性能な省エネ住宅をより手頃な価格で取得でき、長期的な光熱費の削減や快適な住環境の実現が期待できます。特に、小田原市堀之内で新築住宅を検討しているご夫婦にとって、この制度は大きなメリットとなるでしょう。
仲介手数料無料で新築住宅を購入する際の注意点
新築住宅の購入を検討する際、仲介手数料が無料とされる物件に魅力を感じる方も多いでしょう。しかし、仲介手数料無料の仕組みやその背景を理解し、メリットとデメリットを把握することが重要です。以下に、仲介手数料無料の物件を選ぶ際の注意点を詳しく解説します。
まず、仲介手数料無料の仕組みについて説明します。通常、不動産取引では、売主と買主の双方から仲介手数料を受け取る「両手仲介」が一般的です。しかし、仲介手数料無料のケースでは、不動産会社が売主からのみ手数料を受け取り、買主からは手数料を徴収しない形態を取っています。これにより、買主は手数料の負担を軽減できますが、物件の選択肢が限定される可能性があります。
次に、仲介手数料無料の物件を選ぶ際のメリットとデメリットを比較してみましょう。
| メリット | デメリット |
|---|---|
| 購入時の諸費用を削減できる | 紹介される物件数が限定される可能性がある |
| 初期費用の負担が軽減される | 別の名目で手数料が請求される場合がある |
| 物件価格の交渉がしやすくなる | 業務の質が低い業者に当たるリスクがある |
特に注意すべき点として、仲介手数料が無料であっても、「住宅ローン取扱い手数料」や「事務手数料」など、別の名目で費用が請求されるケースがあります。また、仲介手数料無料を謳う不動産会社の中には、物件調査や契約手続きが不十分で、購入後にトラブルが発生する可能性も指摘されています。さらに、仲介手数料無料の物件は、売主から確実に手数料を得られる物件に限られるため、紹介される物件数が全体の約30%程度に限定されることもあります。
購入時に確認すべきポイントとして、以下の点が挙げられます。
- 仲介手数料以外に追加の費用が発生しないかを確認する
- 不動産会社の業務内容や対応の質を事前に調査する
- 紹介される物件数や選択肢が限定されていないかを確認する
- 購入後のアフターフォローやサポート体制が整っているかを確認する
これらの点を踏まえ、仲介手数料無料の物件を選ぶ際には、慎重な検討と十分な情報収集が求められます。信頼できる不動産会社を選び、納得のいく住宅購入を目指しましょう。
まとめ
小田原市堀之内周辺で新築住宅を検討しているご夫婦にとって、この地域は暮らしやすく、長期にわたる安心と充実した子育てを実現できる環境が整っています。長期優良住宅の基準を満たすことで、将来にわたり快適で経済的な住まいが手に入り、子育てグリーン住宅支援事業による支援も活用することで更なる負担軽減が期待できます。加えて、仲介手数料無料の仕組みを理解し、購入時の注意点をしっかり押さえておくことで、より納得のいく住まい選びが可能となります。本記事を通じて、ご家族が安心して新生活をスタートできる一助となれば幸いです。
小田原市の物件一覧|小田原市の新築・中古・不動産ならフィールドホームズへ







