海老名市門沢橋2丁目新築戸建て 第19-1号棟

3,380万円

神奈川県海老名市門沢橋2丁目

相模線「門沢橋」駅徒歩8分

相模線「社家」駅徒歩20分

価格
3,380万円
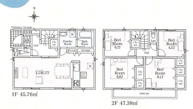
間取り/建物面積
4LDK/93.14㎡
所在地
神奈川県海老名市門沢橋2丁目
築年
2026年1月(予定)
駐車
有(2台)
交通

相模線門沢橋」駅 徒歩8分

相模線社家」駅 徒歩20分

海老名市門沢橋2丁目新築戸建て 第19-1号棟の基本情報

物件名
海老名市門沢橋2丁目新築戸建て 第19-1号棟
価格
3,380万円
建物面積
93.14㎡
土地面積
30.28坪(100.12㎡)
築年月
2026年1月(予定)
総戸数
2戸
所在地
神奈川県海老名市門沢橋2丁目
交通

相模線門沢橋」駅 徒歩8分

相模線社家」駅 徒歩20分

海老名市門沢橋2丁目新築戸建て 第19-1号棟の詳細情報

設備条件
  • 建設住宅性能評価書付
  • 駐車2台可
  • 耐震構造
設備(その他)
    -
駐車場/月額
有(2台)/0円
土地権利
所有権
国土法届出
不要
用途地域
準工業
取引態様
一般媒介
引渡し
相談
備考
家から459mのところに海老名市立有馬図書館があります。徒歩8分圏内に駅のある物件です。建物の構造が制震制に特化されていて、安全性が保たれています。一生に一度のマイホーム探しは、ぜひ新築戸建てで。フィールドホームズでなら、きっとご希望条件に合ったマイホームが見つかります。0120-85-0251かhadano@field-homes.co.jpからお問い合わせください。

海老名市門沢橋2丁目新築戸建て 第19-1号棟のコメント(おすすめポイント)

海老名市立有馬図書館が家から459mのところにあります。ベタ基礎による建築の為、床下からの嫌な湿気も気になりません。劣化対策をしていますので、見た目だけでなく構造からしっかりとした造りです。物件から駅まで徒歩8分です。フィールドホームズは、海老名市の不動産情報を豊富に取り扱っております。0120-85-0251から詳細情報をお尋ねください。

海老名市門沢橋2丁目新築戸建て 第19-1号棟で募集中の物件

  1. 28.17坪 (93.14㎡)

    3,380万円(119.99万円/坪)

周辺施設

  • かどさわばし歯科医院の画像

    歯科

    かどさわばし歯科医院

    184m(3分)

  • 海老名市役所 門沢橋保育園の画像

    保育園

    海老名市役所 門沢橋保育園

    257m(4分)

  • 海湘丸 海老名店の画像

    その他

    海湘丸 海老名店

    352m(5分)

  •  海老名都の湯の画像

    銭湯

    海老名都の湯

    369m(5分)

  • セブンイレブン海老名門沢橋店の画像

    コンビニエンスストア

    セブンイレブン海老名門沢橋店

    425m(6分)

  • 海老名市立有馬図書館の画像

    図書館

    海老名市立有馬図書館

    459m(6分)

  • セブン-イレブン 海老名中野店の画像

    コンビニエンスストア

    セブン-イレブン 海老名中野店

    543m(7分)

  • 中野公園の画像

    公園

    中野公園

    582m(8分)

  •  海老名市立門沢橋小学校の画像

    小学校

    海老名市立門沢橋小学校

    654m(9分)

  • クリエイトS・D 新えびな中野店の画像

    ドラッグストア

    クリエイトS・D 新えびな中野店

    689m(9分)

  • 神奈川県立有馬高等学校の画像

    高校

    神奈川県立有馬高等学校

    967m(13分)

  • 神奈川西郵便局の画像

    郵便局

    神奈川西郵便局

    1131m(15分)

  •  丸亀製麺海老名の画像

    そば・うどん

    丸亀製麺海老名

    1274m(16分)

  •  ケーヨーデイツー・海老名店の画像

    ホームセンター

    ケーヨーデイツー・海老名店

    1548m(20分)

近隣の物件

  1. 海老名市門沢橋2丁目

    2SLDK (103.71㎡)

    3,499万円

  2. 海老名市杉久保南3丁目

    2SLDK (93.57㎡)

    3,380万円

  3. 海老名市杉久保南3丁目

    3SLDK (105.77㎡)

    3,349万円

  4. 海老名市国分寺台2丁目

    4LDK (94.76㎡)

    4,280万円

海老名市門沢橋2丁目新築戸建て 第19-1号棟

お気軽にお問い合わせください

LINEからお問い合わせ 無料お問い合わせ

フィールドホームズ

0120-85-0251

9:30~17:00★時間外は個別対応です!

(休:毎週:火曜日・水曜日)