【外観】外観「厚木市棚沢新築戸建て」
- 建物面積
- 99.78㎡
- 築年月
- 2025年5月(新築)
- ※事前に必ず予約してください
- ●建物内覧予約受付中(要予約)
水曜日以外随時受付中です。
※上記時間以外もお気軽にご相談下さい。 -
バストイレ別
-
TVモニタ付きインターホン
-
カウンターキッチン
-
浴室乾燥機

外観- 販売戸数
- 1戸
- 総戸数
- 1戸
- 間取り / 詳細
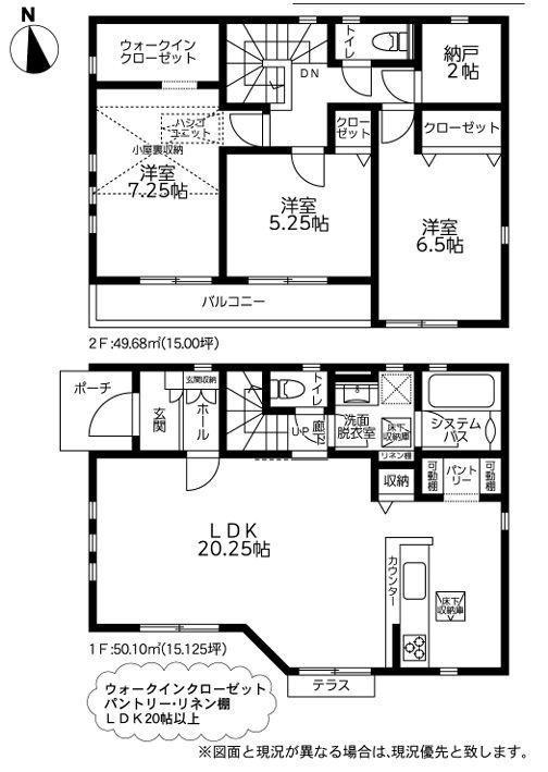
- 3LDK+S(納戸)
LDK 20.2帖 1室/洋室 7.2帖 1室/洋室 6.5帖 1室/洋室 5.2帖 1室/S 2.0帖 1室 - 向き
- 南
- 建物面積(坪数)
- 99.78㎡(30.18坪)
- 土地面積(坪数)
- 88.39㎡(26.73坪)
- 建ぺい率 /
容積率 - 60%/200%
- 築年月
- 2025年5月(新築)
- 駐車場 / 月額
- 有(1台) / 0円
- 土地権利
- 所有権
- 土地
(敷金 / 保証金) - - / -
- 建物構造
- 木造 / 2階建
- 傾斜地部分面積
- -
- 路地状敷地
- -
- 私道負担面積
- -
- セットバック
- 無
- 高圧線下面積
- -
- 施工会社
- -
- 用途地域
- 工業
- 地目 / 地勢
- 宅地 / -
- 接道状況
- 一方(西 公道 4.0m)
- 国土法届出要否
- 不要
- 都市計画
- 市街化区域
- 総区画数 /
販売区画数 - 1区画/1区画
- 現況
- 完成済み
- その他
法令上の制限 - -
- 取引態様
- 一般媒介
- 引渡し
- 即時
- 取引条件の
有効期限 - 2026年04月28日
- 設備条件
-
- カードキー / 現地案内会 / 新婚さん向け / ファミリー向け / キャンペーン / 仲介手数料無料 / フローリング / バルコニー / プロパンガス / 公営水道 / 公共下水 / 24時間換気システム / 電気有 / ガスコンロ / コンロ2口以上 / 食器洗い乾燥機 / システムキッチン / カウンターキッチン / コンロ3口 / バス・トイレ別 / 追焚機能浴室 / 浴室乾燥機 / 温水洗浄便座 / トイレ2ヶ所 / 浴室1坪以上 / 床下収納 / 屋根裏収納 / 収納豊富 / TVモニタ付インターホン / 複層ガラス / ディンプルキー / 住戸内覧可能
- 設備(その他)
-
-
-
- 物件番号
- 90512370
- 管理コード
- -
- 建築確認番号
- 第KBI-SGM24-10-4809号
- 情報更新日
- 2026年04月14日
- 次回更新予定日
- 2026年04月28日
- 取扱会社
-
- フィールドホームズ
- 神奈川県秦野市下大槻679-8
- TEL:0120-85-0251
- 神奈川県知事 (4) 第26513号
- (公社)首都圏不動産公正取引協議会加盟
(公社)神奈川県宅地建物取引業協会
- 備考
- 小田急小田原線本厚木周辺への引っ越しをお考えなら「厚木市棚沢新築戸建て 2期」。来客が一目でわかるTVインターホン付き。ものが多くサービスルームが欲しい方にも嬉しい3SLDK。こだわり条件にマッチした一戸建てをフィールドホームズで探しましょう。0120-85-0251またはhadano@field-homes.co.jpまで、ご希望の条件をご連絡下さい。
-
コンビニエンスストア
セブン-イレブン 厚木下荻野北店
365m(5分)
-
歯科
荻野歯科医院
368m(5分)
-
ガソリンスタンド
ENEOS Carステージ厚木 SS
383m(5分)
-
郵便局
厚木北郵便局
426m(6分)
-
ファミリーレストラン
ココス 厚木下荻野店
447m(6分)
-
コンビニエンスストア
ファミリーマート 厚木三田店
666m(9分)
-
保育園
子中保育園
873m(11分)
-
公園
【厚木市】鳶尾中央公園
964m(13分)
-
幼稚園
とびお幼稚園
1088m(14分)
-
小学校
厚木市立 三田小学校
1879m(24分)
- 月々の支払額
- 円
- 購入希望物件価格
-
万円
- 頭金
-
万円
- 金利
-
%
- 返済額(ボーナス1回分)
-
万円
- 返済期間
-
年
現地案内会
物件の特徴
セールスポイント
◎仲介手数料無料(0円)+ご成約特典5万円分の商品券プレゼント!
厚木市棚沢の新築戸建てはフィールドホームズにお任せください!高機能の給湯器、エコジョーズがゆとりのある暮らしを実現します。建物面積は99.78㎡です。来客が一目でわかるTVインターホン付き。浴室乾燥機のあるお風呂場は洗濯物を干すときにも便利です。
ポイント
◎仲介手数料無料(0円)+5万円商品券対象 〇アルミ樹脂複合サッシ 断熱性能等級5 一次エネルギー等級6 〇全室南向き洋室3SLDK 駐車1台可 ◇学区:三田小学校 睦合中学校
担当者のコメント
パノラマ画像
基本情報
設備条件
その他
周辺施設
支払いシミュレーション
※実際の金額と異なる場合があります。
※ボーナスは自動で年2回分で計算されます。
近隣の物件
よく見られている物件
厚木市棚沢新築戸建て 2期
2,480万円
-
3LDK+S(納戸)(99.78㎡)
石田 理恵
厚木市棚沢の新築戸建てはフィールドホームズにお任せください!
●仲介手数料無料のフィールドホームズでは
一般的に物件価格に対し3%プラス6万円に消費税がかかり
約88万円かかる仲介手数料が当社なら無料となります。
〇アルミ樹脂複合サッシ・断熱性能等級5・一次エネルギー等級6
〇全室南向き洋室3SLDK・駐車1台可
◇学区:三田小学校・睦合中学校
システムキッチンは使いやすく汚れにくいのでご好評です。南向きの物件です。
洗濯物を干して乾かせる浴室乾燥機付きのお風呂場のある物件です。
寒い冬に大変助かる給湯設備がついています。
地域に特化したフィールドホームズが取り扱う不動産情報をご紹介致しますので、
詳細情報が気になる方は、お気軽にお問い合わせくださいませ。