厚木市棚沢新築戸建て 2期

2,480万円

神奈川県厚木市棚沢169-7

小田急小田原線「本厚木」駅バス29分「下谷」停歩4分

価格
2,480万円
間取り/建物面積
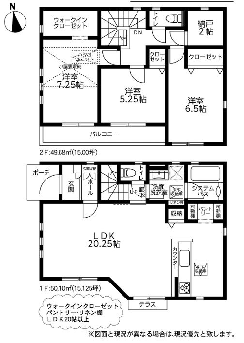
3LDK+S(納戸)/99.78㎡
所在地
神奈川県厚木市棚沢169-7
築年
2025年5月(新築)
駐車
有(1台)
交通

小田急小田原線本厚木」駅 バス29分 「下谷」 停歩4分

厚木市棚沢新築戸建て 2期の基本情報

物件名
厚木市棚沢新築戸建て 2期
価格
2,480万円
建物面積
99.78㎡
土地面積
26.73坪(88.39㎡)
築年月
2025年5月(新築)
総戸数
1戸
所在地
神奈川県厚木市棚沢169-7
交通

小田急小田原線本厚木」駅 バス29分 「下谷」 停歩4分

厚木市棚沢新築戸建て 2期の詳細情報

設備条件
設備(その他)
    -
駐車場/月額
有(1台)/0円
土地権利
所有権
国土法届出
不要
用途地域
工業
取引態様
一般媒介
引渡し
即時
備考
ぜひ一度見ていただきたい、「厚木市棚沢新築戸建て 2期」です。家から426mのところに厚木北郵便局があります。新築の戸建て物件です。地盤調査済みなので、防災面での安心感が増します。厚木市小田急小田原線本厚木周辺の一戸建てをお探しの方は、フィールドホームズにお任せ下さい。ご要望は0120-85-0251までお聞かせ下さい。

厚木市棚沢新築戸建て 2期のコメント(おすすめポイント)

歩いて426mのところに厚木北郵便局があります。地震にも対応してくれる強い地盤の物件は安心感があります。新築戸建ての物件は、室内のレイアウトも自分好みに変更可能です。室内環境まで左右する基礎は、強靭なベタ基礎となっております。小田急小田原線本厚木周辺の一戸建てをお探しの方は、フィールドホームズにご希望の条件をお聞かせ下さい。0120-85-0251やhadano@field-homes.co.jpからご連絡をお待ちしております。

厚木市棚沢新築戸建て 2期で募集中の物件

  1. 30.18坪 (99.78㎡)

    2,480万円(92.78万円/坪)

周辺施設

  • セブン-イレブン 厚木下荻野北店の画像

    コンビニエンスストア

    セブン-イレブン 厚木下荻野北店

    365m(5分)

  • 荻野歯科医院の画像

    歯科

    荻野歯科医院

    368m(5分)

  • ENEOS Carステージ厚木 SSの画像

    ガソリンスタンド

    ENEOS Carステージ厚木 SS

    383m(5分)

  • 厚木北郵便局の画像

    郵便局

    厚木北郵便局

    426m(6分)

  • ココス 厚木下荻野店の画像

    ファミリーレストラン

    ココス 厚木下荻野店

    447m(6分)

  • ファミリーマート 厚木三田店の画像

    コンビニエンスストア

    ファミリーマート 厚木三田店

    666m(9分)

  •  子中保育園の画像

    保育園

    子中保育園

    873m(11分)

  • 【厚木市】鳶尾中央公園の画像

    公園

    【厚木市】鳶尾中央公園

    964m(13分)

  •  とびお幼稚園の画像

    幼稚園

    とびお幼稚園

    1088m(14分)

  • 厚木市立 三田小学校の画像

    小学校

    厚木市立 三田小学校

    1879m(24分)

近隣の物件

  1. 厚木市下荻野

    3LDK (92.74㎡)

    2,580万円

  2. 厚木市下荻野

    1SLDK (91.52㎡)

    2,680万円

  3. 厚木市みはる野1丁目

    4LDK (80.01㎡)

    2,499万円

  4. 厚木市温水

    3LDK (93.92㎡)

    3,980万円

よく見られている物件

  1. 秦野市栄町

    3LDK+S(納戸) (82.62㎡)

    2,880万円

  2. 南足柄市飯沢

    1LDK (66.24㎡)

    2,330万円

  3. 秦野市今泉

    3LDK (82.80㎡)

    2,880万円

  4. 秦野市東田原

    4LDK (101.02㎡)

    2,890万円

厚木市棚沢新築戸建て 2期

お気軽にお問い合わせください

LINEからお問い合わせ 無料お問い合わせ

フィールドホームズ

0120-85-0251

9:30~17:00★時間外は個別対応です!

(休:毎週:火曜日・水曜日)