座間市栗原中央5丁目新築戸建て A号棟

3,290万円

神奈川県座間市栗原中央5丁目8-8

相鉄本線「さがみ野」駅徒歩18分

相鉄本線「かしわ台」駅徒歩24分

価格
3,290万円
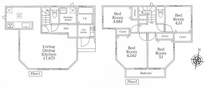
間取り/建物面積
4LDK/92.33㎡
所在地
神奈川県座間市栗原中央5丁目8-8
築年
2025年12月(予定)
駐車
有(1台)
交通

相鉄本線さがみ野」駅 徒歩18分

相鉄本線かしわ台」駅 徒歩24分

座間市栗原中央5丁目新築戸建て A号棟の基本情報

物件名
座間市栗原中央5丁目新築戸建て A号棟
価格
3,290万円
建物面積
92.33㎡
土地面積
32.79坪(108.40㎡)
築年月
2025年12月(予定)
総戸数
1戸
所在地
神奈川県座間市栗原中央5丁目8-8
交通

相鉄本線さがみ野」駅 徒歩18分

相鉄本線かしわ台」駅 徒歩24分

座間市栗原中央5丁目新築戸建て A号棟の詳細情報

設備条件
  • 建設住宅性能評価書付
  • 耐震構造
設備(その他)
    -
駐車場/月額
有(1台)/0円
土地権利
所有権
国土法届出
不要
用途地域
第一種住居
取引態様
一般媒介
引渡し
相談
備考
こだわりポイント満載の座間市栗原中央5丁目新築戸建て A号棟。多くの方から高いニーズのある、内装もピカピカの新築戸建ての物件です。ニーズの高い地震に強い物件はベタ基礎の物件です。近年関心が高まっているエコを意識した省エネ対策がなされています。フィールドホームズにはお電話0120-85-0251だけでなく、メールhadano@field-homes.co.jpからもお問い合わせ頂けます。

座間市栗原中央5丁目新築戸建て A号棟のコメント(おすすめポイント)

こちらは省エネ対策にもご利用頂けます。湿気対策でシロアリ対策など劣化対策している物件です。室内環境を左右する基礎も、ベタ基礎となっているので安心です。多くの方からこだわり条件でいただく新築戸建ての物件です。相鉄本線さがみ野周辺で戸建て選びをするなら、フィールドホームズがプロとして適格なアドバイスをご提供致します。0120-85-0251までご連絡下さい。

座間市栗原中央5丁目新築戸建て A号棟で募集中の物件

  1. 【仲介手数料無料】

    27.92坪 (92.33㎡)

    3,290万円(117.84万円/坪)

周辺施設

  •  栗原幼稚園の画像

    幼稚園

    栗原幼稚園

    349m(5分)

  •  セブン−イレブン 座間南栗原3丁目店の画像

    コンビニエンスストア

    セブン−イレブン 座間南栗原3丁目店

    414m(6分)

  • かつや 神奈川座間店の画像

    その他

    かつや 神奈川座間店

    505m(7分)

  • 栗原小学校の画像

    小学校

    栗原小学校

    550m(7分)

  • オートバックス座間店の画像

    その他

    オートバックス座間店

    571m(8分)

  • 栗原保育園の画像

    保育園

    栗原保育園

    593m(8分)

  •  (有)丸谷商事の画像

    ガソリンスタンド

    (有)丸谷商事

    713m(9分)

  • 相模健康センターの画像

    銭湯

    相模健康センター

    736m(10分)

  • 栗原中学校の画像

    中学校

    栗原中学校

    814m(11分)

  • 松屋 座間立野台店の画像

    その他

    松屋 座間立野台店

    818m(11分)

  • ベーカリー 池久の画像

    その他

    ベーカリー 池久

    838m(11分)

  • 吉野家246号線座間店の画像

    その他

    吉野家246号線座間店

    906m(12分)

  • 座間市 立野台コミュニティセンターの画像

    公民館

    座間市 立野台コミュニティセンター

    920m(12分)

  • 立野台郵便局の画像

    郵便局

    立野台郵便局

    926m(12分)

  • コープの画像

    スーパー

    コープ

    933m(12分)

  • サンドラッグ座間店の画像

    ドラッグストア

    サンドラッグ座間店

    958m(12分)

  • コストコ座間店の画像

    ディスカウントショップ

    コストコ座間店

    1012m(13分)

  • ビバホームの画像

    ホームセンター

    ビバホーム

    1125m(15分)

  • クリエイトS・Dさがみ野店の画像

    ドラッグストア

    クリエイトS・Dさがみ野店

    1187m(15分)

  • ベルク 座間南栗原店の画像

    スーパー

    ベルク 座間南栗原店

    1188m(15分)

近隣の物件

  1. 座間市緑ケ丘4丁目

    2SLDK (119.65㎡)

    4,349万円

  2. 座間市相武台4丁目

    3LDK (80.19㎡)

    3,250万円

  3. 座間市栗原中央3丁目

    3LDK (78.86㎡)

    2,690万円

  4. 座間市新田宿

    2LDK (74.52㎡)

    2,150万円

座間市栗原中央5丁目新築戸建て A号棟

お気軽にお問い合わせください

LINEからお問い合わせ 無料お問い合わせ

フィールドホームズ

0120-85-0251

9:30~17:00★時間外は個別対応です!

(休:毎週:火曜日・水曜日)