NEW

厚木市妻田北4丁目 中古戸建 【仲介手数料無料】

2,780万円

神奈川県厚木市妻田北4丁目

小田急小田原線「本厚木」駅バス12分神奈川中央交通「妻田薬師」停歩6分

価格
2,780万円
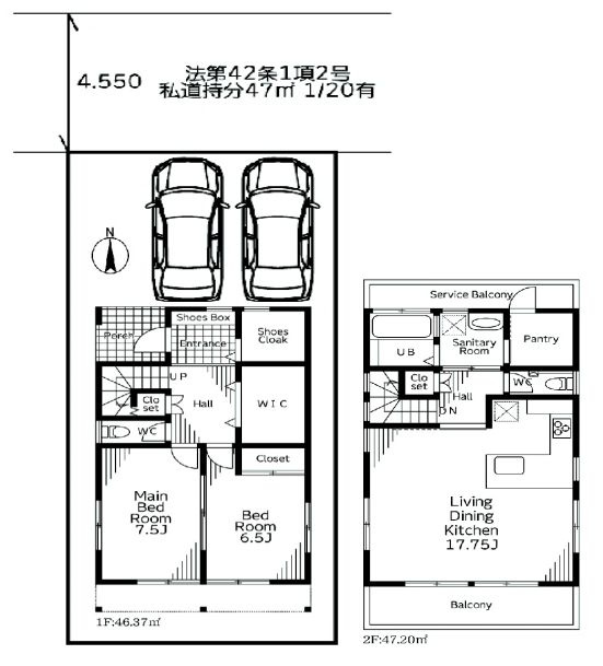
間取り
2LDK
土地面積
116.46㎡
所在地
神奈川県厚木市妻田北4丁目
交通

小田急小田原線本厚木」駅 バス12分 神奈川中央交通「妻田薬師」 停歩6分

建物面積
93.57㎡
築年月
2005年11月(築20年)

現地案内会

日時 2025年7月18日 ~ 2025年10月31日  09:00 ~ 16:00
  • ※事前に必ず予約してください
  • ●建物内覧予約受付中(要予約)
    水曜日以外随時受付中です。
    ※上記時間以外もお気軽にご相談下さい。

物件の特徴

  • バストイレ別

  • TVモニタ付きインターホン

セールスポイント

◎フィールドホームズでは「厚木市妻田北4丁目中古戸建」の仲介手数料0円(無料)となり、初期費用から約96万円軽減可能となります。詳細はお気軽にお問い合わせください。小学校が十分通学できる範囲にあります。【厚木市】清水小学校が徒歩3分です。こちらはTVインターフォン付きの物件です。南向きの物件です。

ポイント

◎仲介手数料無料(0円)対象 〇新規リフォーム済 南向き 陽当たり良好 〇平成17年11月築 2LDK 駐車並列2台可 ◇学区:清水小学校 睦合東中学校

担当者のコメント

石田 和亮

◎フィールドホームズでは「厚木市妻田北4丁目中古戸建」の
仲介手数料0円(無料)となり、初期費用から約96万円軽減可能となります。
詳細はお気軽にお問い合わせください。

〇新規リフォーム済・南向き、陽当たり良好
〇平成17年11月築・2LDK・駐車並列2台可
◇学区:清水小学校・睦合東中学校

小田急小田原線本厚木駅周辺への引っ越しをお考えなら
「厚木市妻田北4丁目 中古戸建」。
ついつい後回しになる掃除。フローリングなら楽々です。

追い焚き機能付きで水道代の節約につながります。
来客が一目でわかるTVインターホン付き。
厚木市での住まい探しは、地域に特化したフィールドホームズが役立ちます。
お客様に満足していただけるよう、
数多くの不動産情報をご用意してお待ちしております。

基本情報

販売戸数
1戸
総戸数
1戸
間取り / 詳細
2LDK
洋室 7.5帖 1室/洋室 6.5帖 1室/LDK 17.7帖 1室
向き
建物面積(坪数)
93.57㎡(28.3坪)
土地面積(坪数)
116.46㎡(35.22坪)
建ぺい率 /
容積率
60%/200%
築年月
2005年11月(築20年)
駐車場 /
月額料金
有(2台) 0円
土地権利
所有権
土地
(敷金 / 保証金)
- / -
建物構造
木造 / 2階建
傾斜地部分面積
-
路地状敷地
-
私道負担面積
47.00㎡
私道負担割合 : 1/20
セットバック
高圧線下面積
-
施工会社
-
用途地域
第一種中高層住居専用
地目 / 地勢
宅地 / -
接道状況
一方(北 私道 4.5m)
国土法届出要否
不要
都市計画
市街化区域
総区画数 /
販売区画数
1区画/1区画
現況
空家
その他
法令上の制限
-
取引態様
一般媒介
引渡し
即時
リフォーム
    2025年6月
    浴室 トイレ 壁
取引条件の
有効期限
2025年11月17日

設備条件

設備条件
  • リフォーム済 / 現地案内会 / ファミリー向け / キャンペーン / 仲介手数料無料 / フローリング / バルコニー / プロパンガス / 公営水道 / 公共下水 / 24時間換気システム / 照明器具付き / 駐車2台可 / ガスコンロ / コンロ2口以上 / システムキッチン / コンロ3口 / バス・トイレ別 / 追焚機能浴室 / 温水洗浄便座 / 洗髪洗面化粧台 / トイレ2ヶ所 / 浴室1坪以上 / 床下収納 / ウォークインクロゼット / 収納豊富 / TVモニタ付インターホン / 複層ガラス / 住戸内覧可能
設備(その他)
    -

その他

物件番号
95501848
管理コード
-
建築確認番号
-
情報更新日
2025年11月03日
次回更新予定日
2025年11月17日
備考
【厚木市】睦合東中学校が徒歩14分で通学にも便利です。建物面積が93.57㎡でスペースが十分のファミリーにもおすすめの物件です。駐車が2台も可能ですので、来客時にも対応できます。フィールドホームズは、お客様の住まい探しを応援致します。不動産情報をお求めであれば、お気軽にお問い合わせください。

周辺施設

  • 【厚木市】清水小学校の画像

    小学校

    【厚木市】清水小学校

    180m(3分)

  • 妻田内科クリニックの画像

    内科

    妻田内科クリニック

    294m(4分)

  • 牛角厚木妻田店の画像

    焼肉

    牛角厚木妻田店

    315m(4分)

  • マクドナルド妻田店の画像

    ファーストフード

    マクドナルド妻田店

    374m(5分)

  • 厚木田園幼稚園の画像

    幼稚園

    厚木田園幼稚園

    583m(8分)

  • クリエイトS・D 厚木妻田店の画像

    ドラッグストア

    クリエイトS・D 厚木妻田店

    624m(8分)

  • リンガーハット 厚木妻田店の画像

    ラーメン

    リンガーハット 厚木妻田店

    685m(9分)

  • オートバックス妻田店の画像

    その他

    オートバックス妻田店

    706m(9分)

  • ちどりこどもクリニックの画像

    小児科

    ちどりこどもクリニック

    729m(10分)

  • 厚木プリモ動物病院23時の画像

    動物病院

    厚木プリモ動物病院23時

    746m(10分)

  • 妻田保育園の画像

    保育園

    妻田保育園

    747m(10分)

  • グラッチェガーデンズ厚木妻田北店の画像

    ファミリーレストラン

    グラッチェガーデンズ厚木妻田北店

    798m(10分)

  • 平塚信用金庫 妻田支店の画像

    信用金庫

    平塚信用金庫 妻田支店

    802m(11分)

  • セブン-イレブン 厚木妻田北3丁目店の画像

    コンビニエンスストア

    セブン-イレブン 厚木妻田北3丁目店

    803m(11分)

  • セブンイレブン三田店の画像

    コンビニエンスストア

    セブンイレブン三田店

    807m(11分)

  • ヨークマート厚木妻田店の画像

    スーパー

    ヨークマート厚木妻田店

    838m(11分)

  • ビッグボーイ及川店の画像

    ファミリーレストラン

    ビッグボーイ及川店

    853m(11分)

  • マックスバリュ厚木妻田店の画像

    スーパー

    マックスバリュ厚木妻田店

    868m(11分)

  • ダイソー 厚木妻田店の画像

    ディスカウントショップ

    ダイソー 厚木妻田店

    924m(12分)

  • 【厚木市】睦合東中学校の画像

    中学校

    【厚木市】睦合東中学校

    1090m(14分)

支払いシミュレーション

月々の支払額
9.6
購入希望物件価格
万円
頭金
万円
金利
%
返済額(ボーナス1回分)
万円
返済期間

※ボーナスは自動で年2回分で計算されます。

近隣の物件

  1. 厚木市妻田東2丁目新築戸建て 1号棟

    厚木市妻田東2丁目

    4LDK (113.64㎡)

    3,290万円

  2. 厚木市下荻野 戸建て

    厚木市下荻野

    3LDK (92.74㎡)

    2,680万円

  3. 厚木市妻田西2丁目 中古戸建

    厚木市妻田西2丁目

    3LDK (104.72㎡)

    2,790万円

  4. 厚木市森の里5丁目 中古戸建

    厚木市森の里5丁目

    4LDK (117.58㎡)

    2,499万円

厚木市妻田北4丁目 中古戸建

厚木市妻田北4丁目 中古戸建

2,780万円

-

2LDK(93.57㎡)

お気軽にお問い合わせください

LINEからお問い合わせ 無料お問い合わせ

フィールドホームズ

0120-85-0251

9:30~17:00★時間外は個別対応です!

(休:毎週:火曜日・水曜日)