愛川町中津新築戸建て 第134-1号棟

2,580万円

神奈川県愛甲郡愛川町中津1723

小田急小田原線「本厚木」駅バス36分神奈川中央交通「春日台一丁目」停歩3分

価格
2,580万円
間取り/建物面積
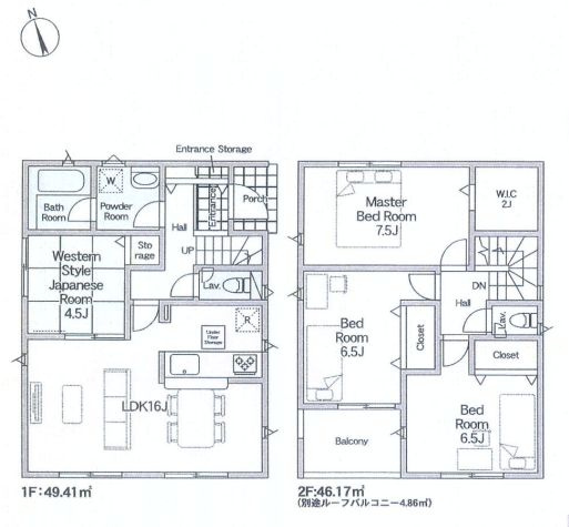
4LDK/95.58㎡
所在地
神奈川県愛甲郡愛川町中津1723
築年
2025年1月(新築)
駐車
有(1台)
交通

小田急小田原線本厚木」駅 バス36分 神奈川中央交通「春日台一丁目」 停歩3分

愛川町中津新築戸建て 第134-1号棟の基本情報

物件名
愛川町中津新築戸建て 第134-1号棟
価格
2,580万円
建物面積
95.58㎡
土地面積
35.76坪(118.22㎡)
築年月
2025年1月(新築)
総戸数
5戸
所在地
神奈川県愛甲郡愛川町中津1723
交通

小田急小田原線本厚木」駅 バス36分 神奈川中央交通「春日台一丁目」 停歩3分

愛川町中津新築戸建て 第134-1号棟の詳細情報

設備条件
  • 建設住宅性能評価書付
  • 耐震構造
設備(その他)
    -
駐車場/月額
有(1台)/0円
土地権利
所有権
国土法届出
不要
用途地域
第一種中高層住居専用
取引態様
一般媒介
引渡し
即時
備考
徒歩11分の場所に愛川町立中津第二小学校があります。劣化対策をしてますので耐久性の高い建材を使っています。ベタ基礎の物件は多くの方にご好評で安全性が高いので安心です。新築戸建ての物件は、室内のレイアウトも自分好みに変更可能です。フィールドホームズは、愛甲郡愛川町にある戸建て情報をご紹介しております。気になる方は、hadano@field-homes.co.jpからご連絡下さい。

愛川町中津新築戸建て 第134-1号棟のコメント(おすすめポイント)

「愛川町中津新築戸建て 第134-1号棟」のここがイチオシ。徒歩11分の場所に愛川町立中津第二小学校があります。省エネルギー対策により断熱性も高く、空調設備費も抑えられます。ベタ基礎による建築の為、床下からの嫌な湿気も気になりません。フィールドホームズまでお問い合わせ頂く場合には、0120-85-0251またはhadano@field-homes.co.jpからお待ちしております。

愛川町中津新築戸建て 第134-1号棟で募集中の物件

  1. 28.91坪 (95.58㎡)

    2,580万円(72.15万円/坪)

周辺施設

  • ヒロ薬局愛川店の画像

    ドラッグストア

    ヒロ薬局愛川店

    442m(6分)

  • ファミリーマート愛川中津店の画像

    コンビニエンスストア

    ファミリーマート愛川中津店

    515m(7分)

  • 春日台幼稚園の画像

    幼稚園

    春日台幼稚園

    546m(7分)

  • ノジマ愛川店の画像

    家電製品

    ノジマ愛川店

    560m(7分)

  • ローソン愛川春日台店の画像

    コンビニエンスストア

    ローソン愛川春日台店

    615m(8分)

  • いなげや愛川春日台店の画像

    スーパー

    いなげや愛川春日台店

    666m(9分)

  • クリエイトS・D愛川中津店の画像

    ドラッグストア

    クリエイトS・D愛川中津店

    767m(10分)

  • 愛川町立中津第二小学校の画像

    小学校

    愛川町立中津第二小学校

    809m(11分)

  •  ジョナサン・愛川町店の画像

    ファミリーレストラン

    ジョナサン・愛川町店

    814m(11分)

  • ケンタッキーフライドチキン愛川店の画像

    ファーストフード

    ケンタッキーフライドチキン愛川店

    822m(11分)

  • フラワーランド愛川店の画像

    スーパー

    フラワーランド愛川店

    855m(11分)

  • 愛川町立春日台保育園の画像

    保育園

    愛川町立春日台保育園

    857m(11分)

  • 【愛川町】愛川東中学校の画像

    中学校

    【愛川町】愛川東中学校

    926m(12分)

  • オートバックス愛川店の画像

    その他

    オートバックス愛川店

    926m(12分)

  • 愛川郵便局の画像

    郵便局

    愛川郵便局

    1001m(13分)

  • マクドナルド 愛川中津店の画像

    ファーストフード

    マクドナルド 愛川中津店

    1054m(14分)

  • ファッションセンターしまむら愛川店の画像

    その他

    ファッションセンターしまむら愛川店

    1116m(14分)

近隣の物件

  1. 愛甲郡愛川町中津

    3LDK (95.58㎡)

    2,180万円

  2. 愛甲郡愛川町中津

    4LDK (95.58㎡)

    2,680万円

  3. 愛甲郡愛川町中津

    4LDK (100.60㎡)

    2,680万円

  4. 愛甲郡愛川町中津

    4LDK (101.02㎡)

    2,780万円

愛川町中津新築戸建て 第134-1号棟

お気軽にお問い合わせください

LINEからお問い合わせ 無料お問い合わせ

フィールドホームズ

0120-85-0251

9:30~17:00★時間外は個別対応です!

(休:毎週:火曜日・水曜日)