厚木市下川入新築戸建て 第17-1号棟

3,080万円

神奈川県厚木市下川入

相模線「原当麻」駅バス15分神奈川中央交通「山際」停歩12分

小田急小田原線「海老名」駅バス25分神奈川中央交通「中荻原」停歩5分

価格
3,080万円
間取り/建物面積
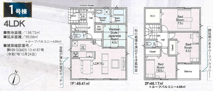
4LDK/95.58㎡
所在地
神奈川県厚木市下川入
築年
2026年1月(予定)
駐車
有(3台)
交通

相模線原当麻」駅 バス15分 神奈川中央交通「山際」 停歩12分

小田急小田原線海老名」駅 バス25分 神奈川中央交通「中荻原」 停歩5分

厚木市下川入新築戸建て 第17-1号棟の基本情報

物件名
厚木市下川入新築戸建て 第17-1号棟
価格
3,080万円
建物面積
95.58㎡
土地面積
41.35坪(136.72㎡)
築年月
2026年1月(予定)
総戸数
3戸
所在地
神奈川県厚木市下川入
交通

相模線原当麻」駅 バス15分 神奈川中央交通「山際」 停歩12分

小田急小田原線海老名」駅 バス25分 神奈川中央交通「中荻原」 停歩5分

厚木市下川入新築戸建て 第17-1号棟の詳細情報

設備条件
  • 建設住宅性能評価書付
  • 駐車3台可
  • 耐震構造
  • 宅配ボックス
設備(その他)
    -
駐車場/月額
有(3台)/0円
土地権利
所有権
国土法届出
不要
用途地域
第一種住居
取引態様
一般媒介
引渡し
相談
備考
薬や日用品を買うのに便利なドラッグセイムス下川入店まで354mです。光熱費を抑えたい方におすすめ。省エネ対策済み物件はいかがでしょうか。地震のエネルギーを吸収する、制震構造になっています。劣化対策をしていますので、見た目だけでなく構造からしっかりとした造りです。知識豊富なフィールドホームズのスタッフが、マイホーム探しを全力でサポート致します。0120-85-0251・hadano@field-homes.co.jpからご連絡ください。

厚木市下川入新築戸建て 第17-1号棟のコメント(おすすめポイント)

ぜひ一度見ていただきたい、「厚木市下川入新築戸建て 第17-1号棟」です。薬や日用品を買うのに便利なクリエイトS・D下川入店まで480mです。地震エネルギーを吸収し、建物の揺れを抑えてくれます。地盤が弱いと大惨事になりかねませんので地盤調査はとても大切です。厚木市よりご紹介しております、フィールドホームズがお勧めする設備が充実した戸建てはいかがでしょうか。気になる方は、hadano@field-homes.co.jpまでいつでもご連絡下さい。

厚木市下川入新築戸建て 第17-1号棟で募集中の物件

  1. 28.91坪 (95.58㎡)

    3,080万円(74.49万円/坪)

周辺施設

  •  厚木市立藤塚中学校の画像

    中学校

    厚木市立藤塚中学校

    353m(5分)

  • セブン-イレブン厚木下川入東店の画像

    コンビニエンスストア

    セブン-イレブン厚木下川入東店

    365m(5分)

  • クリエイトS・D下川入店の画像

    ドラッグストア

    クリエイトS・D下川入店

    480m(6分)

  • エスパティオ下川入店の画像

    スーパー

    エスパティオ下川入店

    581m(8分)

  • セブン-イレブン厚木下川入店の画像

    コンビニエンスストア

    セブン-イレブン厚木下川入店

    718m(9分)

  • 栗の里の画像

    ファミリーレストラン

    栗の里

    838m(11分)

  •  厚木上依知郵便局の画像

    郵便局

    厚木上依知郵便局

    1015m(13分)

近隣の物件

  1. 厚木市妻田西2丁目

    3LDK (104.72㎡)

    2,790万円

  2. 厚木市下荻野

    3LDK (92.74㎡)

    2,680万円

  3. 厚木市森の里5丁目

    4LDK (117.58㎡)

    2,450万円

  4. 厚木市長谷

    4LDK (97.20㎡)

    3,280万円

厚木市下川入新築戸建て 第17-1号棟

お気軽にお問い合わせください

LINEからお問い合わせ 無料お問い合わせ

フィールドホームズ

0120-85-0251

9:30~17:00★時間外は個別対応です!

(休:毎週:火曜日・水曜日)